Connexion Votre espace utilisateur

Gare de Nouzonville08700

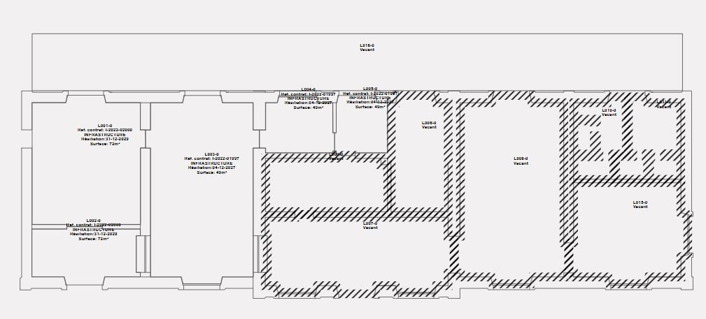
Locaux disponibles
Gare de Nouzonville
Gare de Nouzonville
Gare de Nouzonville
Gare de Nouzonville
Gare de Nouzonville
Gare de Nouzonville
Gare de Nouzonville

Description du site

Au sein de la gare de Nouzonville, SNCF Gares & Connexions propose à la location un espace d'une surface totale de 125 m² au rez-de-chaussée. 

Environnement et accès :​

La gare est desservie par des trains TER à destination et en provenance de Charleville-Mézières, Givet, etc...
Un parc pour vélos et un parking pour véhicules sont aménagés. Un service de cars complète la desserte ferroviaire. 

Proximité avec la ville :​
La gare de Nouzonville se trouve à 10min à pied du centre-ville, facilitant l'accès aux commerces, services administratifs, et autres commodités urbaines.​

Modalités :​
Le loyer sera déterminé en fonction du modèle économique du projet et des spécificités de la gare. Toutes les activités sont envisageables, sous réserve de validation. ​
Pour obtenir plus d'informations, ou demande de visites, veuillez nous contacter via l’onglet « Manifestez votre intérêt » sur le site Place de la Gare.

Cette gare vous intéresse Manifestez votre intérêt
125m²
Surface exploitée
56 138
Voyageurs / an

Situation socio-économique

  • Population commune 5 887
  • Population agglomération 123 082
  • Emplois 894
  • Entreprises 340

Géolocalisation de l'annonce

Les demarches partenaires

Ces autres annonces pourraient vous intéresser

Ces gares de la région Grand Est n'attendent plus que votre projet