Connexion Votre espace utilisateur

Gare de La Guerche-sur-l'Aubois18150

Locaux disponibles
Gare de La Guerche-sur-l'Aubois
Gare de La Guerche-sur-l'Aubois

Description du site

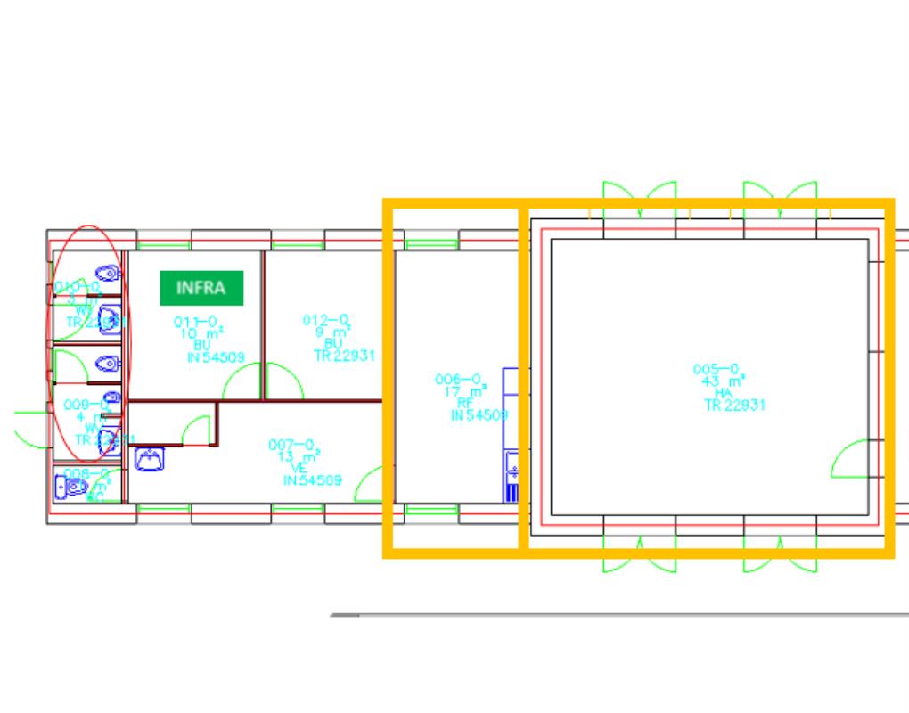
En gare de La Guerche-sur-l'Aubois, SNCF Gares & Connexions propose à la location un espace d’une surface totale de 143 m² répartis comme suit :

  • 43m² + 17m² au RDC
  • 83m² au 1er étage

Environnement et accès

La gare de La Guerche-sur-l'Aubois au flux de passage de 36 000 clients/an, est située à 5 min à pied du centre de la ville et à 1h en train de la gare de Bourges.

Modalités

La mise à disposition des locaux se fait dans le cadre d’un appel à projets. Ils seront disponibles après une période de travaux visant à le mettre aux normes.

Le candidat propose le montant de la redevance, en euros et/ou en pourcentage du chiffre d’affaires prévisionnel, en fonction de son activité et des prix pratiqués sur le marché. La proposition est étudiée au regard du projet présenté et des caractéristiques de la gare. ​Pour les activités économiques et commerciales, sauf exception, la redevance comprend une part variable complémentaire assise sur le chiffre d’affaires, déclenchée à partir d’un seuil annuel défini sur le chiffre d’affaires. Un montant minimum est toutefois exigé : « redevance de base garantie ».

Toutes les activités sont possibles, sous réserve de conformité avec le Plan Local d'Urbanisme Métropolitain (PLUM – disponible en mairie) et de validation par le jury lors de la phase d’instruction des candidatures. ​
Précision importante : L’appel à projets porte exclusivement sur une location des locaux. Aucune vente de locaux ou du bâtiment de la gare n’est proposée.

Pour plus d’informations ou pour organiser une visite, merci de nous contacter via l’onglet « Manifestez votre intérêt » sur le site Place de la Gare – Projet de dynamisation territoriale.

Plans

Cette gare vous intéresse Manifestez votre intérêt
143m²
Surface exploitée
43 456
Voyageurs / an

Situation socio-économique

  • Population commune 3 322
  • Population agglomération 9 896
  • Emplois 636
  • Entreprises 211

Géolocalisation de l'annonce

Les demarches partenaires

Ces autres annonces pourraient vous intéresser

Ces gares de la région Bretagne - Pays de la Loire - Centre - Val de Loire n'attendent plus que votre projet