Connexion Votre espace utilisateur

Gare de Baisieux59780

Locaux ouverts à la candidature
Gare de Baisieux
Gare de Baisieux
Gare de Baisieux
Gare de Baisieux
Gare de Baisieux

Description du site

Description du site :

Frontalière de la Belgique et située aux portes de Lille, Baisieux est une commune paisible et attractive en plein essor : une population d’un peu plus de 5 000 habitants en constante progression et au pouvoir d’achat supérieur à la moyenne métropolitaine, riche de nombreux commerces de proximité, d’entreprises emblématiques et d’un tissu associatif dynamique. La commune bénéficie d’une bonne accessibilité : gare SNCF, réseau de bus, RM41 et échangeur A27.

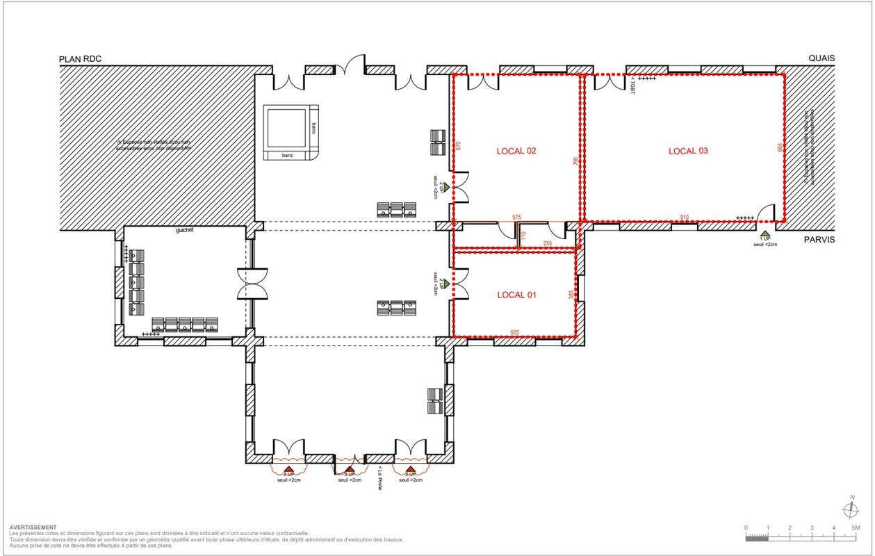
Au sein de la gare de Baisieux, SNCF Gares & Connexions propose à la location un espace d'une surface totale de 63 m² en rez-de-chaussée accessible en toute indépendance depuis la partie latérale droite du parvis de la gare. Ce local lumineux et bien agencé permet d’imaginer un aménagement personnalisé pour de nombreuses activités.

A noter que deux autres espaces sont actuellement disponibles, tous deux accessibles depuis le hall de la gare. Connectables après travaux, les trois unités permettraient de disposer d’une surface commerciale de 120m2.

Environnement et accès :

La gare est desservie par les trains TER Hauts-de-France assurant la desserte entre Lille Flandres et Tournai (Belgique) avec un premier train dès 06h15 le matin en semaine et un dernier train à 22h20 le soir. Un parking pour véhicules et motos est aménagé sur le devant. Un service de taxis et de cars du réseau Arc-en-Ciel, ainsi que des vélos électriques en libre-service et des arceaux vélos complètent la desserte ferroviaire transfrontalière. Les services suivants y sont disponibles : guichet de ventes, borne d'achat de billets, salle d'attente. Le local bénéficie d’une belle visibilité depuis le parvis et le parking de la gare.

Proximité avec la ville :

Avec plus de 56 000 voyageurs en 2024, la gare de Baisieux est en connexion directe avec le centre-ville, facilitant ainsi l'accès aux divers commerces, services administratifs, et autres commodités urbaines. Un projet résidentiel de 40 logements doté d’un centre de santé et de deux commerces s’implantera à proximité immédiate de la gare d’ici 2028.

La commune de Baisieux est engagée dans la démarche partenariale « Objectif Centralité», soutenue par la Métropole Européenne de Lille, la CCI Grand Lille, et la CMA Hauts de France. L'objectif est de créer un véritable centre-ville autour de la gare en accueillant de nouvelles activités manquantes sur la commune tout en soutenant le dynamisme de l'offre commerciale et artisanale du " Grand Baisieux ". Ainsi, le projet qui s’implantera pourra bénéficier de la dynamique d’Objectif Centralité et des soutiens mobilisables dans ce cadre.

Modalités :

L'appel à manifestation d'intérêt prendra fin le 27 mars 2026. A compter de cette date, les projets transmis ne pourront plus être modifiés par les candidats et tout projet reçu après le délai imparti sera rejeté. Vous êtes intéressé par ce local et souhaitez déposer une candidature, veuillez télécharger le dossier administratif via l'accès candidature « Accédez à l’espace candidature » du site Place de la Gare. Les dossiers de candidature doivent être déposés sur la plateforme dédiée avant la date limite. ​

Le candidat propose le montant de loyer, en euros et/ou en pourcentage du chiffre d’affaires prévisionnel, en fonction de son activité et des prix pratiqués sur le marché. La proposition est étudiée au regard du projet présenté et des caractéristiques de la gare. Toutes les activités sont envisageables, sous réserve de validation par le jury lors de la phase d’instruction des candidatures et de validation, considérant qu’un potentiel de développement a été identifié pour les activités suivantes : lieu de vente de producteurs locaux, primeurs, petite restauration, librairie/presse, équipement de la personne et équipement de la maison et services type formation (auto-école) ou micro-crèche. 

L’appel à projets porte exclusivement sur une location de locaux. Aucune vente de locaux ou du bâtiment de la gare n’est proposée.

Cette gare vous intéresse Accédez à l'espace de candidature
63m²
Surface exploitée
56 211
Voyageurs / an

Situation socio-économique

  • Population commune 4 750
  • Population agglomération 1 143 572
  • Emplois 753
  • Entreprises 318

Géolocalisation de l'annonce

Les demarches partenaires

Ces autres annonces pourraient vous intéresser

Ces gares de la région Hauts de France - Normandie n'attendent plus que votre projet